Construction d’une plateforme agricole sur la commune de Savas Mepin.
Réalisation de la mission d’Exécution comprenant la réalisation des plans de coffrage et de ferraillage des éléments béton armé.
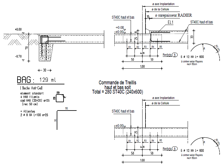
La plateforme comprend la création d’un radier destiné à recevoir des silos de stockage ainsi que d’un bâtiment agricole.
Réalisation de caniveaux sous les silos dont un de grande hauteur.



