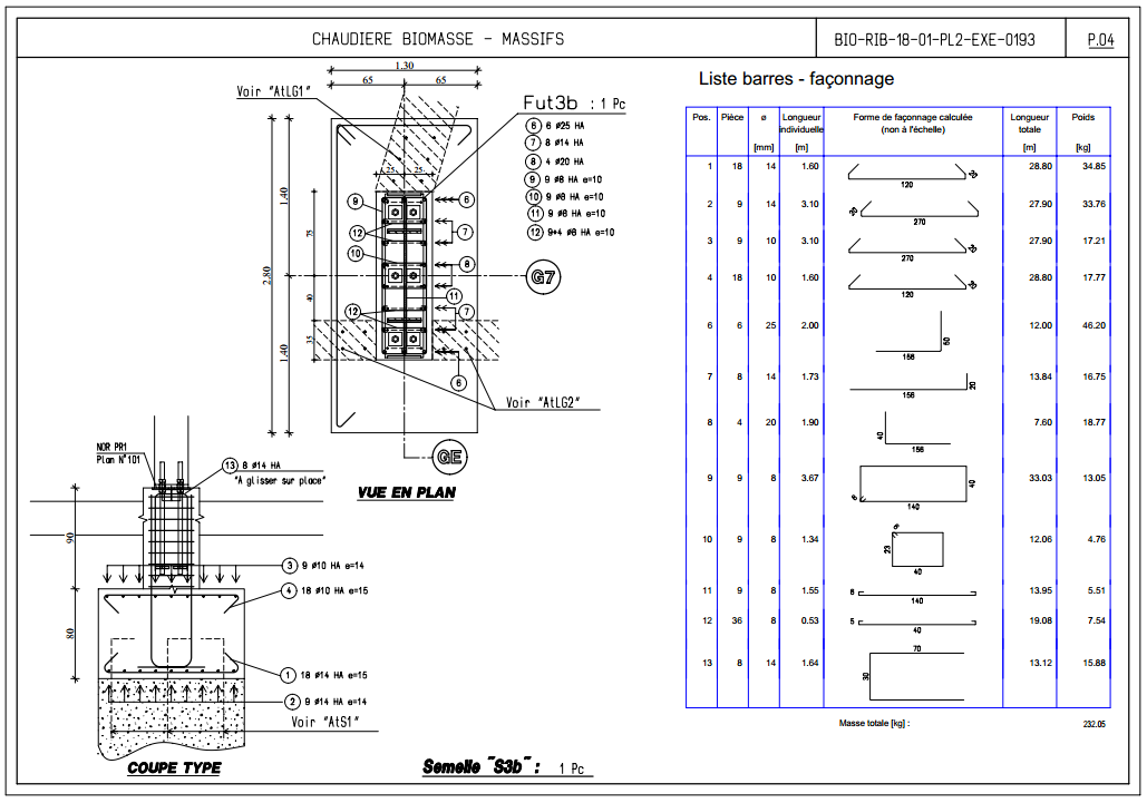
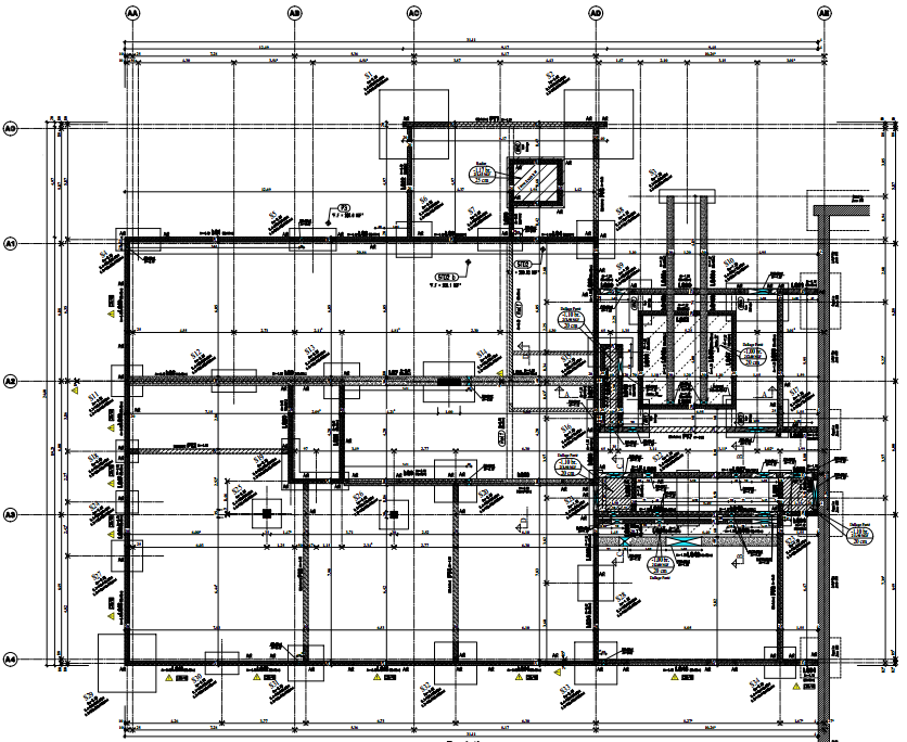
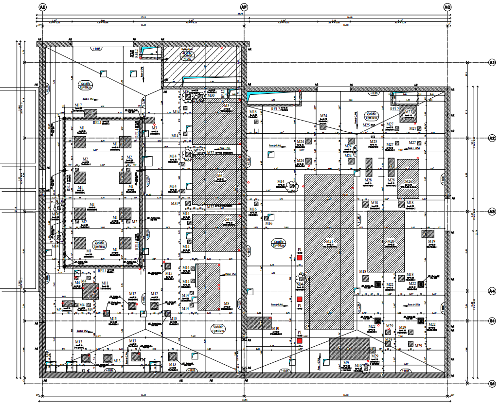
Réalisation des études d’exécution pour la création d’une unité de production de chaleur biomasse dans le but d’améliorer le bilan air-énergie-climat de l’agglomération grenobloise. Elle se compose d’une grande partie Stockage (Dépotage, Séchage, Criblage, Silo) ainsi que d’un Hall Chaudière qui sont tous deux enveloppés par une charpente métallique. A cela vient s’ajouter un bâtiment en béton armé (mur ep=50cm et dalle alvéolaire) montant à 14.50m contenant un local GTA et un Générateur d’appoint. Un bâtiment entièrement en béton armé de 4 étages avec des Locaux Electriques au RdC et Administratifs sur le reste des étages vient se juxtaposer à ces édifices. L’ensemble de ces bâtiments repose sur un système de fondations « Puits / Longrines« . Quelques ouvrages extérieurs bordent ces constructions tel un Sprinkler, Ponts Bascules, Mur de Soutènement, Poste de Garde,…
Afin de livrer des ouvrages parfaitement fonctionnels, un important travail de synthèse en collaboration avec les lots process a été nécessaire en amont, pendant et après la réalisation pour pallier aux éventuelles adaptations.







