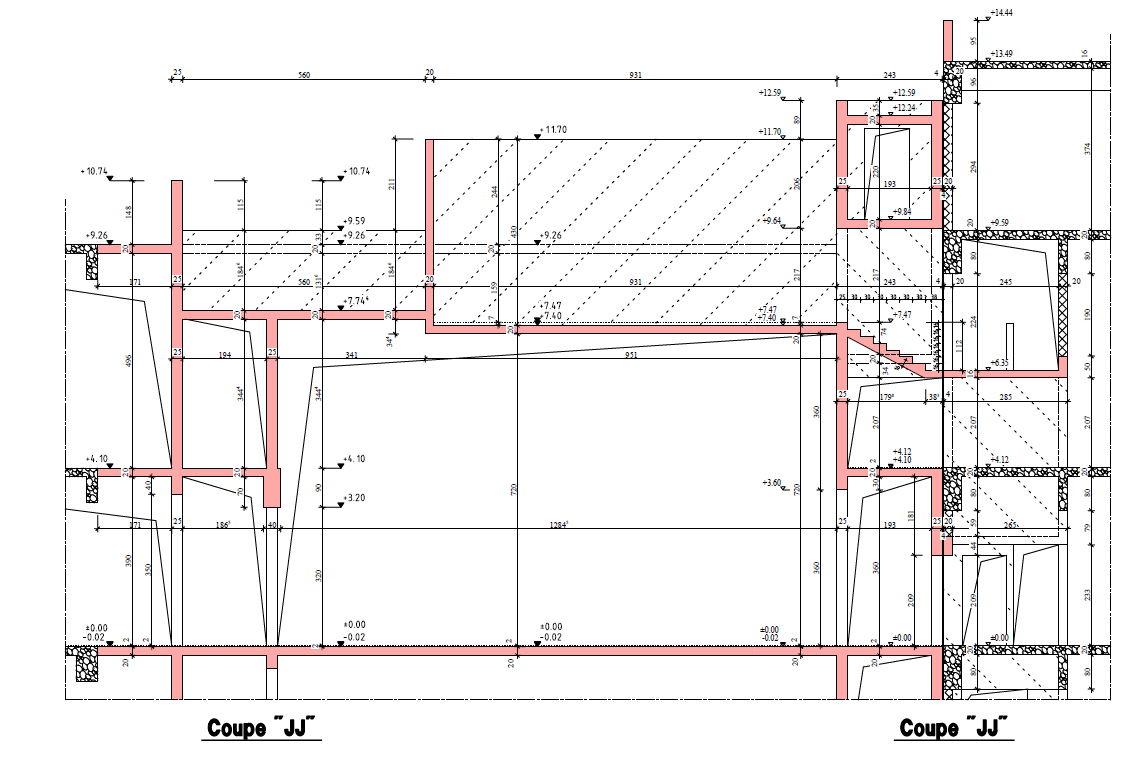
Restructuration de l’espace culturel Beaudelaire à Rilleux-la-Pape, comprenant la démolition totale du noyau central existant et la reconstruction de celui ci en béton armé.
Réalisation de la mission d’Exécution comprenant l’ensemble des plans de coffrage et de ferraillage des éléments en béton armé.
Le tout sera surplombé de toitures terrasses accessibles réalisées en dalles coulées sur place, reposant sur des poutres voiles de grandes longueurs.
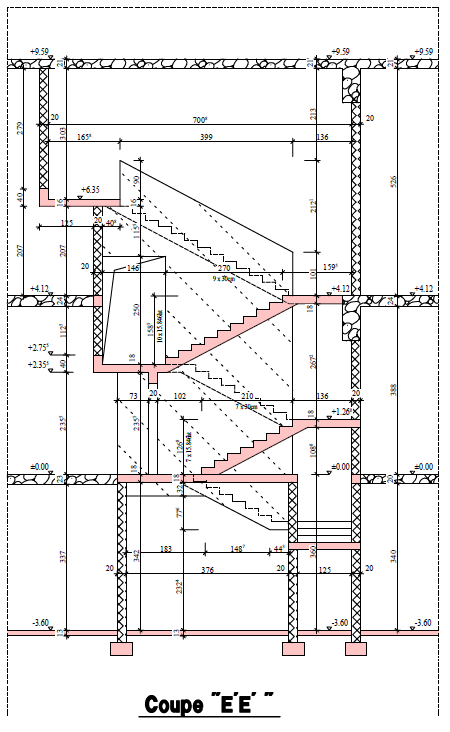
Réhabilitation d’une partie de la structure conservée et ajout d’une cage d’escalier au sein de celle-ci.
Une partie de l’étage est réalisée en charpente métallique reposant sur un réseau de poutres béton armé, le tout fondé sur semelles superficielles.





